新型冠状病毒肺炎应急传染病医院暖通要则
发布时间:2025-01-19 来源:维高净化 浏览次数:869
前言
1月20日之前,有关武汉肺炎的官方消息为“无明显人传人证据”、“可防可控”、“传染力不强”。
20日钟南山先生先后发言“有人传人特点”、“肯定存在人传人”,之前出于直觉的谨慎观望态度变成警觉。
21日8点,我在公众号发布“武汉肺炎——我们如何防范”简文,强调“1m以上距离”、“躲远点!”。
短短两天时间,形势急转直下,1月23日9时,武汉宣布参照北京小汤山医院模式紧急建设临时医院,用于集中收治新型冠状病毒肺炎患者,我立即回顾小汤山医院设计图纸及其总结、搜集各方资料,希望为应急传染病医院的暖通设计做点事。
24日3点39分发布公众号文章“应急传染病医院暖通要则”,考虑到设计人员时间紧急,文章删减一些论述,简化为简单粗暴的概要,想着随后补充详述去支持概要内容以释设计人疑虑,但随后24日开始与中信设计院对接,加上个人凡事,一直未能补充完善。
从24日以来得到的传染病医学专家、感控专家、通风行业的信息,以一个设计师的角度看待此次疫情,补充修改该要则。
 
一线设计人员时间紧迫,本次要则仍将简单粗暴,不做过多叙述,斜体字均可略过。
一、对本次应急医院的定位
1.医护人员是第一保护对象,不接触病患的院内工作人员是第二保护对象。
2.医护人员的物理防护隔离措施完善、到位。
3.收治病人为高度疑似+确诊病人,以确诊病人为主。
4.不排除病毒变异通过气溶胶传播。下面这段文字有时间再了解一下
飞沫粒径0.1~1000μm,100μm以上飞沫很快升降,因此对于非近距离接触,通过大颗粒飞沫感染的概率非常低。21日文章中“1m以上距离”也是世卫组织建议值。飞沫中10~100μm颗粒在空气中水分蒸发、与空气中颗粒物撞击接触……等途径,部分转化为小粒径飞沫、小粒径颗粒物,这些都可能带有病原体,对通风专业来讲,1~10μm颗粒更具有公共卫生意义——这个粒径范围的带有病原体的可吸入颗粒物可在空气中悬浮数小时,如果浓度达到医学上的感染剂量限值,这时常称为气溶胶传播(飞沫核传播)。
二、设计原则
1.安全——最大限度降低空气传播风险
2.简单——节约安装时间
3.可靠——尽可能减少维护工作,降低工作人员感染风险
三、通风目标
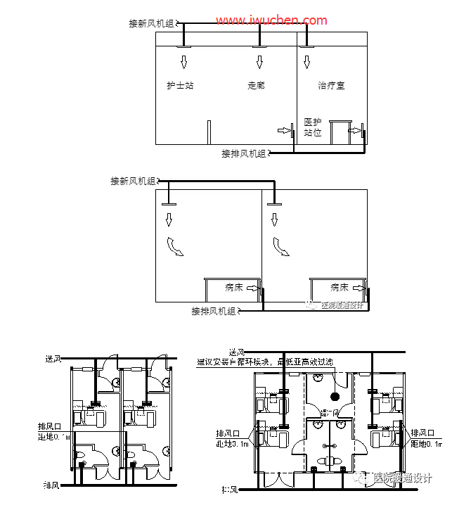
1.在医院内营造定向单向的空气流动方向:清洁区→半污染区→污染区。
2.在半污染区、污染区,采用6次以上的通风量稀释室内污染空气,降低病菌浓度,降低区域内医护人员感染风险。
ASHRAE建议肺结核病隔离病房和治疗室的最小换气次数为6次/时,大于6次/时的换气次数可能使房间的细菌浓度更低,但没有明显证据证明换气次数的增加能降低传染风险。当前我国北方气温逐步升高,南方气温在近2月内仍处于适宜范围,因此建议适当提高换气次数。
换气次数对去除颗粒的影响(来自美国CDC)
换气次数
去除99%颗粒所需时间
去除99.9%颗粒所需时间
2
138
207
4
69
104
6
46
69
8
35
52
10
28
41
12
23
35
15
18
28
20
14
21
50
6
8
 
3.为重症病人营造洁净环境,降低并发症死亡风险。
 
四、设计概要
1.通风系统划分
清洁区、半污染区、污染区的机械送、排风系统应按区域分别设置,半污染区中的医护走廊单独设置送排风系统。()
3.区域空气流向
清洁区→半污染区→污染区。
这几天常有同行谈及当前应急医院的压力梯度控制,个人意见认为在这种非常时期建成的医院,围护结构及其接缝密闭性很难有保障,相应的室内压力梯度也无法保证,因此,只能针对具体房间、具体区域设计送排风量差值,靠差值引导空气流向。
4.通风量
风量
 
区域
最小新风量
最小排风量
换气次数
h-1
风量
m3/h
换气次数
h-1
风量
m3/h
清洁区
3
150


半污染区
5
250
6
250
污染区
6
病人数*10000/房间体积
300+
新风量
300+
病人数*10000/房间体积
重症病房
手术室
12
/
300+
新风量
/
非常时期建成的医院,围护结构及其接缝密闭性很难有保障,因此建议增大送排风量差值,对污染区来讲,300m3/h风量差值相当于15~25m2的房间换气4~6次。
5.气流组织
上送风、下排风

 
6.空气过滤器最低要求
新风——粗效+中效+高中效过滤器(重症病房、手术室采用高效过滤器)
排风——粗效+亚高效/高效过滤器
虽然冠状病毒粒径约为0.1μm,但其附着的颗粒粒径范围为1~10,MERV14、MERV15、MERV16对1~3μm微粒的过滤效率分别为90、90、95,MERV14~16相当于我国标准的亚高效过滤器的效率。为降低排风中病毒浓度,对排风提出最低亚高效过滤要求,在目前形势不明情况下,安全起见,建议排风系统设置高效过滤,有条件时推荐采用袋进袋出高效过滤,以降低维护人员的感染风险。
7.间距
新风机组取风口与排风机组排出口之间水平间距大于15m。新风口距地3m,排风口距地至少6m。
ASHRAE最大的10m间距并不适用于生物安全实验室等未知病毒排风与新风口的间距,个人认为新型冠状病毒属于未知病毒,应在10m基础上加大安全距离。
8.冷热处理
室内——分体空调
新风——直膨式新风机组或电加热
所有空间,如需空调,采用分体空调最好,插电即用,无需调试,即使多联机空调也不推荐,因为需要铜管焊接安装、加氟、调试,这些都占用宝贵时间!另外多联机也存在安全隐患。
新风机组如果需要,供货条件许可时,采用直膨式最好,冷热皆可供,否则,直接上电加热,可先不考虑供冷。
对于武汉,1月日均气温0~9℃,2月日均气温2~11℃,未来一个月内气温预计维持在0~12℃之间,据可靠信息,此次新型冠状病毒怕热,因此可在新风机组内设置电加热段,以降低由于排风扩散不利而导致区域内病毒进入新风系统的危险性,同时也改善送风温度条件。
9.其它
新、排风机组均安装在室外开敞地带或清洁区,不得设置于病人活动区或污染区内;
风管主管尽量少变径,建筑高度条件许可就不变径,主管风速4~5m/s,尽量小,支管风速可取4m/s,不装调节阀(没时间),如果设置调节阀,不得设在病房内。
装配式的送排风模块是目前最佳方案——不需调试,平衡能力强,接上主风管即可用,唯一担忧的是生产供货能力。
五、其它
1.应设库房存放足量的过滤器,可按工程清单的3倍库存。
2.排风过滤器更换后,应就地封装后集中焚烧。
3.污染区的排风机组应备有库存。
六、备患
目前建设的应急医院只是关注控制传染,而对免疫缺陷的传染病人很难起到保护作用,恰恰此次疫情患者以中老年人为主,老年人普遍免疫系统较弱,因此不排除未来出现一些免疫缺陷又感染新型冠状病毒的患者,为防患于未然,建议在应急医院设置几间特殊病房,用于收治此类病人。
这种病房既要保护病房外环境——免受病房内空气传播传染性病菌的污染,也要保护病房内环境——保护患者免受微生物感染。因此这种病房既要防止室内空气外泄,也要防止外界空气侵入病房。
保护型空气传播隔离病房设计要点:
a.送风口位于病床上方。
b.排风口位于靠近病房门口下部。
c.缓冲间的压力相对于病房和走廊(或普通区域)要么都是正压,要么都是负压,设计可选,但必须同时正压或负压,不允许在病房、前室、走廊(或普通区域)之间出现递增(或递减)的阶梯压差。
注:无论前室相对正压还是负压,病房相对室外总是正压。
d.应安装两套永久性的压差监测装置,一套监测病房与前室压差,另一套监测前室与走廊(或普通区域),每套装置都应在病房外提供就地可视化装置来显示压差是否得以维持。
e.保护型空气传播隔离病房的计算风量可参照GB50849负压隔离病房的最小12次换气,病房内送风末级过滤器建议采用B类高效过滤器。

a.缓冲间正压隔离
b.缓冲间负压隔离

图注:缓冲间正压隔离时采用亚高效送风口、负压隔离时采用高效排风口,这是根据GB50849负压隔离病房的送排风要求。

声明:本网站发布的内容(图片、视频和文字)以原创、转载和分享网络内容为主,如果涉及侵权请尽快告知,我们将会在第一时间删除。文章观点不代表本网站立场,如需处理请联系客服。电话:189-5653-9761。

本站全力支持关于《中华人民共和国广告法》实施的“极限化违禁词”的相关规定,且已竭力规避使用“违禁词”。故即日起凡本网站任意页面含有极限化“违禁词”介绍的文字或图片,一律非本网站主观意愿并即刻失效,不可用于客户任何行为的参考依据。凡访客访问本网站,均表示认同此条款!反馈邮箱:365667427@qq.com。

相关资讯